

TOP
Profile
Staff
Works


Performance
Contact
21Style Building&House&Design Office
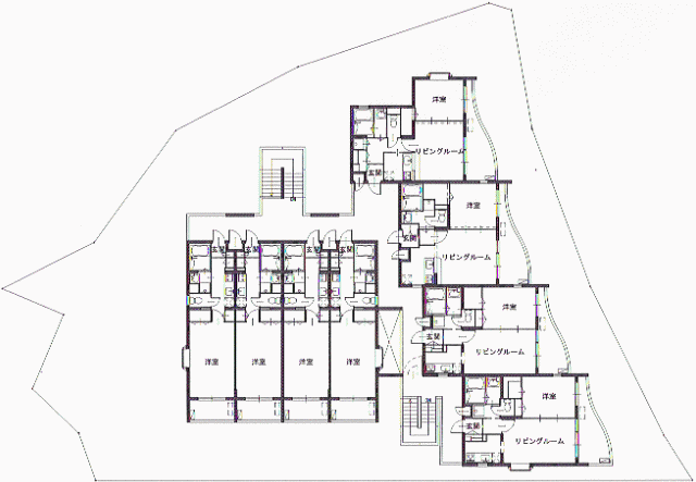
| 変形された敷地に建つこの共同住宅は、周囲は閑静な住宅街で南側には緑道があり、春には桜が満開となる。 緑道に面する住戸のベランダはリズミカルに曲線を描き、周囲の環境に溶け込んでいる。 共同住宅と学習教室のエントランスは別に設け、入居者専用のエントランスには御影石を使用し、 格調高い空間を造り出している。また、メールボックスや宅配ボックスを設置し、家を空ける時間が多い住人にも配慮している。 緑道に面する住戸はリビングルームと洋室の間仕切りを3枚引戸にし、開ければ広々としたワンルームになり、 閉めればベットルームとして使用することもできる。 共同住宅の1階に学習教室を併せ持つこの建物は、外観だけでなく、建物の内面から周囲の環境に溶け込み、 人々を受け入れるよう、住民や近隣の人々が多目的ルームとして学習教室を使用することができる。 今後、集合住宅のありかたとして、収益だけを考えるのではなく、どのように近隣住民と関わっていくのかを提案した建物である。 |



